Nieuwpoortstraat 35

5628 NA, Eindhoven

Verkocht

€ 489.000,- k.k.

Kenmerken

Beschrijving

Foto's

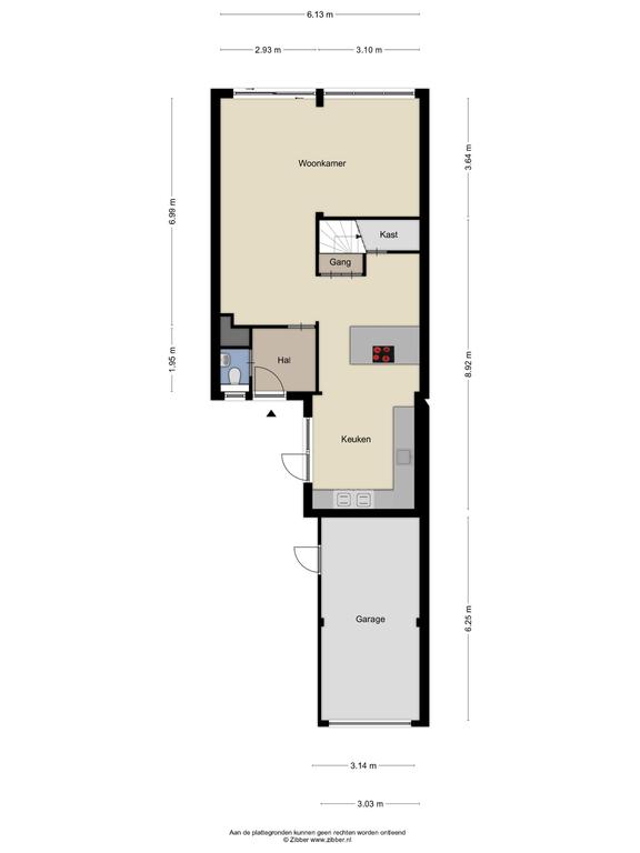
Plattegrond(en)

Brochure

Overdracht

Koopprijs
€ 489.000,- k.k.
Status
Verkocht

Bouwvorm

Soort object
Woonhuis
Soort woning
Eengezinswoning
Type woning
Geschakelde woning
Kwaliteit woning
Goed
Bouwjaar
1971
Bouwvorm
Bestaande bouw
Liggingen
In woonwijk, Vrij uitzicht, Beschutte ligging
Energieklasse
B

Indeling

Woonoppervlakte
148 m2
Perceel oppervlakte
222 m2
Inhoud
600 m3
Aantal kamers
7
Aantal slaapkamers
4
Aantal badkamers
1
Aantal verdiepingen
3

Buitenruimte

Tuin
Achtertuin, Voortuin
Type
Achtertuin
Oppervlakte
90 m2
Ligging hoofdtuin
West
Achterom
Nee
Kwaliteit tuin
Normaal

Bergruimte

Geen bergruimte bekend

Garage en parkeren

Garage
Aangebouwd steen
Aantal garages
1
Garage capaciteit
1
Garage voorzieningen
Elektra, Elektrische deur
Garage oppervlakte
20 m2
Parkeer faciliteiten
Openbaar parkeren

Dak

Soort dak
Zadeldak

Voorzieningen

Voorzieningen
Dakraam
Ja
Glasvezel kabel
Ja

Overig

Permanente bewoning
Ja
Onderhoud binnen
Goed
Onderhoud buiten
Goed
Huidig gebruik
Woonruimte
Huidige bestemming
Woonruimte

Op zoek naar een fijne gezinswoning met garage en een tuin grenzend aan het fraaie Henri Dunantpark? Lees dan zeker verder, wellicht wordt dit jouw nieuw droom(t)huis! Volledig geïsoleerd en energielabel B!. Geheel voorzien van kunststof kozijnen met HR++ glas, dus gunstig voor het energieverbruik en geen omkijken naar het schilderwerk. Gelegen in de wijk Tempel, nabij Winkelcentrum Woensel en de uitvalswegen, dus alle voorzieningen dichtbij.

De garage is aan de voorzijde van de woning gelegen. Via de voortuin bereik je de entree van de woning. Aan de voorzijde van de woning treft je de uitgebouwde keuken aan. Deze is de droom voor een fanatieke hobby-kok, maar ook een heerlijke ruimte om te borrelen met vrienden of te genieten van het familie-ontbijt. De keuken is voorzien van een kookeiland met inductie-kookplaat en afzuigkap. Aan het kookeiland is plaats voor zeker 4 zitplaatsen. Verder is de keuken voorzien van een vaatwasser, koelkast, vriezer en 2 maal een combimagnetron/oven.

Het zitgedeelte is gelegen aan de achterzijde en is tuingericht. Doordat de woning aan de achterzijde aan het Henri Dunantpark grenst, heb je geen achterburen, dus optimale privacy en een fraai groen uitzicht. Door de grote raampartij heb je veel lichtinval in de woonkamer. Door de schuifpui bereik je de leuke tuin. Dat wordt genieten met familie en vrienden van een heerlijke BBQ, of wordt dit het speelparadijs van de kinderen?

De opgang naar de 1e verdieping is voorzien van originele deuren in Franse Stijl. Op de 1e verdieping ligt een pvc vloer. Je treft daar 3 slaapkamers aan, waarvan de grootste voorheen 2 slaapkamers waren. Dit is evt terug te brengen, zodat er een totaal van 5 slaapkamers mogelijk zijn. De grootste kamer kijkt uit op het park en heeft veel lichtinval door de dubbele raampartijen. Aan de voorzijde van de woning treft je de 2 andere slaapkamers aan. Ook deze hebben ruim voldoende lichtinval. De luxe badkamer is voorzien van een Whirlpool bubbelbad, een inloopdouche met regendouchekop, een breed wastafelmeubel, toilet en bidet.

Op de zolderverdieping tref je de 4e slaapkamer aan. Deze is voorzien van dakramen. Aansluitend aan de kamer tref je een extra ruimte aan die voor meerdere doeleinden geschikt is. Wordt dit een leuke werkplek, of een leuke speelruimte voor de kinderen? Of nog een extra slaapkamer?
Op de voorzolder tref je de wasmachine-aansluiting en de opstelplaats voor de CV ketel.

Kenmerken;
Woonoppervlakte: 148m2
Overig inpandige ruimte: 19m2
Inhoud: 600m3
Voorzien van; dak-, vloer-, muurisolatie, HR++ glas

Geen brochure beschikbaar

Uw persoonlijke makelaar

Marij-Ellen Smits

06-53191515 [email protected]
Uw persoonlijke makelaar

René van de Laar

0413-472118 [email protected]
Uw persoonlijke makelaar

Inge Wijngaarden

0413-472118 [email protected]